Loft in vendita

Milano, Viale Monte Grappa - Corso Como
€ 1.290.000
110 Mq 110 Mq
1 bagno 1 bagno

Loft in vendita

Milano, Viale Monte Grappa - Corso Como

Descrizione annuncio

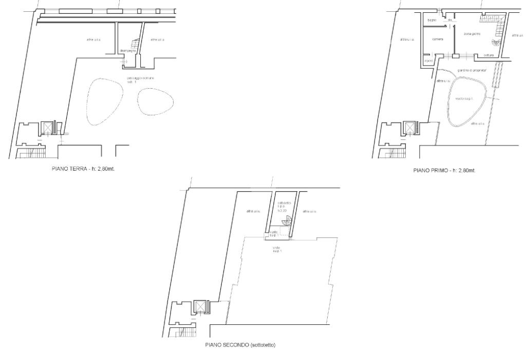
AMPIO ED ELEGANTE LOFT POSTO SU TRE LIVELLI!!

Situato in Viale Monte Grappa 16, posizione privilegiata e nel cuore del rinomato quartiere di Porta Nuova; in uno stabile di nuova costruzione con servizio di portineria intera giornata, lo studio immobiliare Tecnocasa Moscova propone nuova ed ampia soluzione con finiture eleganti.

La residenza, posta su tre livelli, si presenta completamente ristrutturata ed è così composta:
- al piano terra troviamo un ampio e comodo disimpegno d'ingresso
- al primo piano ci addentriamo nel vivo dell'appartamento con il suo luminoso e silenzioso soggiorno con cucina a vista dotata di ogni confort tra cui un terrazzino vivibile, successivamente una camera da letto matrimoniale con cabina armadio e bagno finestrato con box doccia.
- Al secondo e ultimo piano un'ulteriore camera da letto matrimoniale.

Aria condizionata canalizzata e riscaldamendo centralizzato

Completa la proprietà una cantina di pertinenza.

Libero al rogito.

Mostra tutto

Nelle vicinanze

Trasporto pubblico Trasporto pubblico
Garibaldi FS
Garibaldi FS
320 m
Moscova
Moscova
570 m
Milano Porta Garibaldi passante
Milano Porta Garibaldi passante
390 m
Milano Porta Garibaldi superficie
Milano Porta Garibaldi superficie
410 m
Viale Monte Grappa - Via Gioia
Viale Monte Grappa - Via Gioia
20 m
Ricariche auto elettriche Ricariche auto elettriche
NH Palazzo Moscova
90 m
BeCharge Milano Gae Aulenti
170 m
A2A Isola Digitale Corso Como - Porta Garibaldi
270 m
A2A Volta
450 m
A2A Isola Digitale Pirelli Gioia
630 m
Scuole Scuole
Scuola Secondaria di primo grado Statale Solferino – Rossari Castiglioni
190 m
Scuola Maria Montessori
210 m
Scuola Primaria Statale Bastioni di Porta Nuova – Alberto Da Giussano
210 m
Scuola svizzera
440 m
I.T.C. Carlo Tenca
630 m
Farmacia Farmacia
Farmacia Smeraldo
40 m
Fatebenefratelli
240 m
Farmacia Garibaldi
310 m
Farmacia Solferino
340 m
Farmacia Monte Santo
350 m
Ospedali Ospedali
Fatebenefratelli
300 m
Humanitas San Pio X
1,5 Km
Istituto Villa Marelli
1,8 Km
Ospedale dei Bambini "Vittore Buzzi"
1,8 Km
Centro Medico Milano Tree Of Life S.r.l.
1,9 Km
Supermercati Supermercati
Esselunga
270 m
Carrefour Market
310 m
Bio C Bon
330 m
u! express
410 m
Superpolo
480 m
Negozi Negozi
Hydrogen
10 m
Petit Bateau
60 m
Y-3
150 m
Massimo Rebecchi
150 m
Boule de Neige
150 m
Bar Bar
Vibe Room
30 m
Miami Lounge Bar
90 m
Music Viga Bar
120 m
Blenderino
150 m
Maf Bar
150 m
Ristoranti Ristoranti
Sciatt a Porter
20 m
Curò Ristorante
50 m
The Prime
80 m
Wiener Haus Milano
100 m
Sakura
100 m
Mostra tutto

Caratteristiche

Rif.:
61155936
Piano:
1 di 5 con ascensore (Piano basso)
Terrazzi:
1
Camere da letto:
2
Arredamento:
Completo
Condizionamento:
Autonomo
Mostra tutto
Prezzo Prezzo
€ 1.290.000
Rata mutuo Rata mutuo
€ 6.078 / mese
Spese annue Spese annue
€ 4.200
Proponi il tuo prezzoProponi il tuo prezzo

Classe Energetica

D
D
D
D
D
D
D
D
D
EP globale non rinnovabile:
224.32 kW h/m² anno
EP globale rinnovabile:
224.32 kW h/m² anno
EP invernale del fabbricato:
EP estiva del fabbricato:
Anno di costruzione:
2014
Riscaldamento:
Centralizzato
Tipo impianto:
A radiatori
Tipo alimentazione:
Metano

Ti interessa visionare l'immobile?

Fissa un appuntamento  Fissa un appuntamento

Richiedi informazioni

Clicca su Leggi per aprire l'informativa
* Questi campi sono obbligatori

Calcola il tuo mutuo

Semplice e senza impegno
Anticipo

( % )
Mutuo

( % )

pochi semplici passi

inserisci i tuoi dati
Questionario completato
Grazie per aver richiesto un appuntamento senza impegno con un nostro Consulente del Credito e Assicurativo.

Hai inserito correttamente tutti i dati necessari e a breve riceverai una e-mail con un link da convalidare per inviare i tuoi dati.
Affiliato
Studio Moscova Srl
Via Alessandro Volta, 12 20121 Milano (MI)

Il nostro staff


  • Pietro Belcastro
    Affiliato

  • Gianmaria Mazzocchi
    Collaboratore

  • Nicolas Trotta
    Collaboratore

  • Giulia Varano
    Coordinatrice
Via Alessandro Volta, 12 20121 Milano (MI)
Zona: Moscova
Mostra su mappa
Orari: da lunedì a venerdì 09.30/12.30 - 14.30/19.30 sabato 09.30/12.30
Affiliato
Studio Moscova Srl
Via Alessandro Volta, 12 20121 Milano (MI)

2026 Tecnocasa Franchising S.p.A. - P. IVA 08365160152 - Via Monte Bianco 60/A 20089 Rozzano (MI). Ogni agenzia ha un proprio titolare ed è autonoma. Privacy policy | Policy utilizzo | Cookie policy